Knapkiewicz & Fickert
| Aktuell
| Wettbewerbe 1
| Wettbewerbe 2
| Wettbewerbe 3
| Wettbewerbe 4
| Bauten 1
| Bauten 2
| Projekte
| Ausstellungen
| Publikationen
| Büro
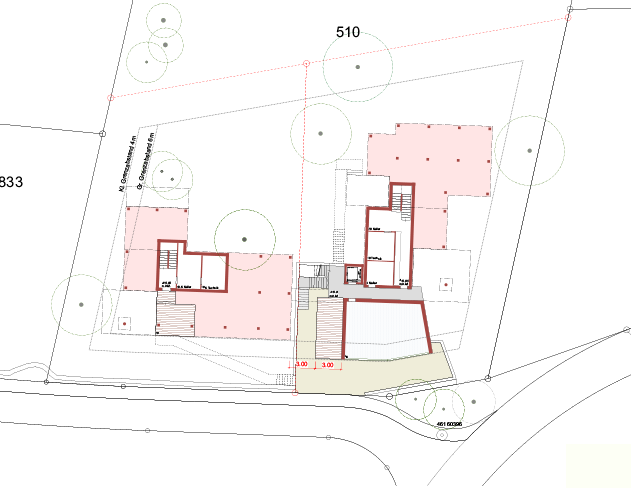
Zwei Einfamilienhäuser Uesslingen, Ausserackerstrasse
Planung seit 2024
Projektteam:
Etienne Girard, Samuel Meier
Übersicht Projekte